山手1丁目 貸家
物件番号/1057249359
- 賃 料
- 57,000円
- 共益費
- 0円
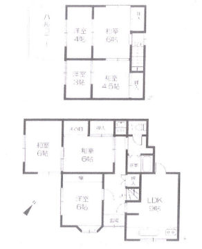
- 間取り
- 7LDK
- 専有面積
- 84.03㎡
- 築年月
- 昭和46年11月 (築55年)
- 敷 金
- 0円
- 礼 金
- 150,000円
- 保証金
- -
- 解約引
- -
- 交 通
- JR加古川線 神野駅 徒歩26分
JR加古川線 厄神駅 徒歩38分
JR加古川線 日岡駅 徒歩42分 - 所在地
- 加古川市山手1丁目
おすすめポイント
駐車場2台付き☆広々した間取り☆
設備・周辺情報など
- 路線/駅
- JR加古川線 神野駅 徒歩26分
JR加古川線 厄神駅 徒歩38分
JR加古川線 日岡駅 徒歩42分 - 所在地
- 加古川市山手1丁目
- 内 訳
- DK9帖、洋室6帖、洋室4帖、洋室3帖、和室6帖、和室6帖、和室6帖、和室4.5帖
- 種 別
- 貸家
- 階数/階建
- 1階/2階建
- 向 き
- 南西
- 構 造
- 木造
- 現 況
- 空室
- 入 居
- 即時
- 契約期間
- 2年
- 取引態様
- 一般媒介
- 駐車場
- 空有
- 設備/条件
- 上水道
- 下水道
- 都市ガス
- 電話
- 給湯
- フローリング
- 洗髪洗面化粧台
- システムキッチン
- バルコニー
- シャワー
- 温水洗浄便座
- 収納スペース
- インターネット対応
- 洗面所独立
- 駐輪場
- 角部屋
- バイク置場
- 光ファイバー
- 日当たり良好
- 閑静な住宅街
- メゾネット
- ペット相談
- 2人入居可
- 保証人不要
- 高齢者相談
- 保 険
- 加入要 20,000円/2年
- 保証会社
- 利用必須 初回保証料:総賃料の50%
- 金銭備考
- クレジットカード決済可(分割最大24回払いOK)
- 周辺施設
- 神野小学校/1427m (徒歩18分)
- 山手中学校/270m (徒歩4分)
- セブンイレブン/850m (徒歩11分)
- マルアイ/750m (徒歩10分)
- 大学など
- -
表示の情報と現況に差異がある場合は現況優先となります。
お問い合わせ·内覧予約は
同じ建物の他の空室
- 階
- 家賃/
共益費 - 敷金/
礼金 - 間取り/
専有面積

1階- 6.0万円
- - -
12.0万円 - 5DK
86.66m²









