カームハイツ1番館
物件番号/1057228414
- 賃 料
- 76,000円
- 共益費
- 3,000円
- 間取り
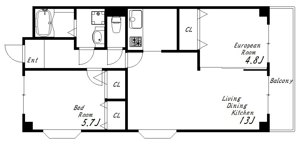
- 2LDK
- 専有面積
- 55㎡
- 築年月
- 昭和63年9月 (築38年)
- 敷 金
- 0円
- 礼 金
- 1ヶ月
- 保証金
- -
- 解約引
- -
- 交 通
- JR山陽本線 西明石駅 徒歩16分
山陽電鉄線 藤江駅 徒歩27分 - 所在地
- 明石市小久保4丁目
おすすめポイント
人気のペット飼育可能物件です☆都市ガスで経済的!リノベーション物件です☆
設備・周辺情報など
- 路線/駅
- JR山陽本線 西明石駅 徒歩16分
山陽電鉄線 藤江駅 徒歩27分 - 所在地
- 明石市小久保4丁目
- 内 訳
- LDK13帖、洋室5.7帖、洋室4.8帖
- 種 別
- マンション
- 階数/階建
- 1階/4階建
- 向 き
- 南
- 構 造
- RC
- 現 況
- 空室
- 入 居
- 即時
- 契約期間
- 2年
- 取引態様
- 一般媒介
- 駐車場
- 空有
- 設備/条件
- 上水道
- 下水道
- 都市ガス
- 電話
- 給湯
- フローリング
- システムキッチン
- バルコニー
- ガスキッチン
- シャワー
- 室内洗濯置場
- バス・トイレ別室
- 温水洗浄便座
- 収納スペース
- インターネット対応
- 洗面所独立
- 駐輪場
- 角部屋
- コンロ2口以上
- バイク置場
- 日当たり良好
- 閑静な住宅街
- リノベーション
- ペット相談
- 2人入居可
- 保証人不要
- 高齢者相談
- 保 険
- 加入要
- 保証会社
- 利用必須 初回保証料 家賃総額の50%
- 金銭備考
- 更新料: 11,000円
- 鍵交換代: 16,500円
- クレジットカード決済可(分割最大24回払いOK)ペット飼育時礼金1ヶ月アップ/退去時クリーニング費2.2万円
- 周辺施設
- 沢池小学校/763m (徒歩10分)
- 野々池中学校/789m (徒歩10分)
- コンビニ/100m (徒歩2分)
- 大学など
- -
表示の情報と現況に差異がある場合は現況優先となります。










